Sie sind hier: Neubau  

NEUBAU
 

Wir sind Ihr Dienstleister

Die Planung und Überwachung Ihres Bauvorhabens erfolgt unter Einbeziehung Ihrer Wünsche und Vorstellungen. Gemeinsam mit Ihnen wird das beste Verhältnis zwischen Kosten, Ausführungsstandard und Terminen erarbeitet.

Das Leistungsprofil:

Wir erarbeiten in enger, kontinuierlicher Zusammenarbeit mit Ihnen Planungskonzepte für den Neu- und Umbau von Wohnhäusern.
Im Bereich Neubau und Umbau werden mit Ihnen individuelle Lösungen erarbeitet, wobei besonderer Wert auf Energieeinsparung gelegt wird.

Kundenbetreuung, auch nach der Bauübergabe ist Bestandteil der Zusammenarbeit mit Ihnen Lassen Sie uns wissen wenn Sie Probleme mit Ihrem fertigen Objekt haben, wir helfen bei der Problemlösung.

Wir Planen, damit Sie sich wohl fühlen, nennen Sie uns Ihre Wünsche um vom einfachen Wohnen zum Wohlfühlen zu kommen.


 

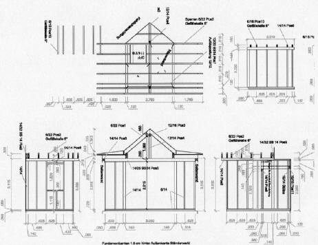
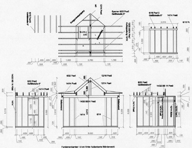
Wohnhauserweiterung In Holzrahmenbauweise




 

Werkstattplan